RENOVATION OF A HOLIDAY FLAT
MERAN, SOUTH TYROL, ITALY
COMPLETED 2022
JOANNA LEHNIS
LAINS ARCHITECTURE
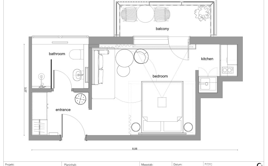
Holidays in a cinema atmosphere? This project is about a small holiday flat in the heart of Merano. The guest is not just a spectator but becomes the most important protagonist of his own story: Take a seat!
The almost exclusively black and white interior design is based on the concept that a room can serve as the stage for a story or a film scene. Only one piece of furniture is coloured and is reminiscent of the main protagonist of a scene. Each piece of furniture and the layout has been carefully selected and designed to best meet the needs of a short holiday stay.























