NEUBAU; FASSADENVERKLEIDUNG, AUSSENGESTALTUNG, INNENARCHITEKTUR ERDGESCHOSS
TOBLACH, SÜDTIROL, ITALIEN
FERTIGSTELLUNG, JULI 2024
JOANNA LEHNIS
ARCH. ASTRID HASLER, JULIA RUDA, JESSY LORENZON
CAMILLA CAPPELLI
Eingebettet Toblach, Südtirol, verkörpert dieses Hotelprojekt das Wesen der Verbindung. Das Design zielt darauf ab, die Natur und das Gebaute zu vereinen, Tradition und Innovation zu verbinden, die Hotelgäste mit den Einheimischen in Kontakt zu bringen und die Generationen der Familie unserer Kunden zu verbinden.
ONE WITH NATURE
Inmitten einer außergewöhnlichen Landschaft mit Blick auf Berge und Wiesen strebt dieses Konzept danach, die Grenzen zwischen dem Hotel und seiner natürlichen Umgebung aufzulösen, sodass sich die Gäste von dem Moment an, in dem sie ankommen, eins mit der Natur fühlen. Das Hotel steht als Zeugnis für das harmonische Zusammenleben von Natur und Architektur, Tradition und Moderne sowie alten und neuen Generationen.
Natürliche Farben und Materialien unterstreichen die Verbindung mit der Natur. Von verschiedenen Grüntönen bis hin zu natürlichem Holz und sogar akustischen Lösungen; die Integration von echtem Gras und Wildblumen in Tapeten und Akustikpaneele schafft eine sensorische Verbindung zur Wiesenlandschaft des Hotels.
STORY
INNENARCHITEKTUR
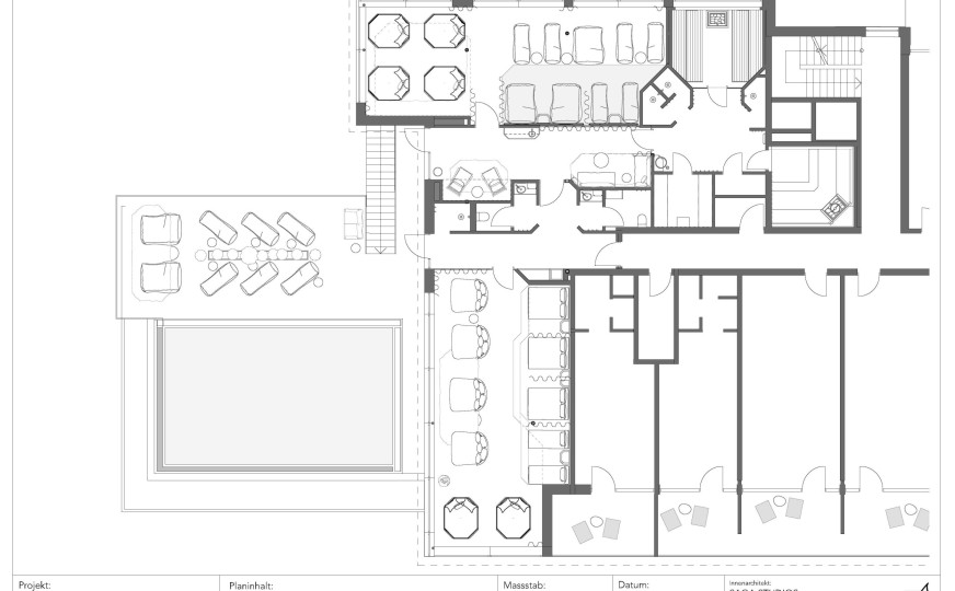
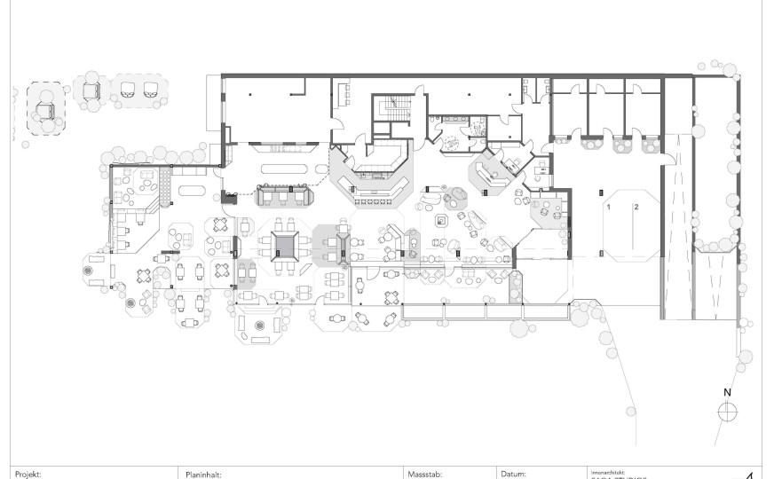
Das Innendesign des Erdgeschosses ist mit einem offenen Grundriss für die Rezeption, den Lobbybereich, die Bar, das Restaurant und das Buffet gestaltet. Die Lobby zelibriert einen zentralen Kamin mit einer einzigartigen grünen Steinverkleidung, die sorgfältig so gestaltet ist, dass sie von jeder Ecke der Lobby, aber auch von der Rezeption, der Bar und sogar von Teilen des Restaurants und Buffetbereichs aus gesehen und genossen werden kann.
SPA
Der Spa-Bereich im zweiten Stock ist darauf ausgelegt, die nahezu 360°-Panorama-Landschaft zu zelibrieren. Mit einem Infinity-Außenpool und einer Terrasse, zwei Ruhezonen, zwei Saunen, einem Dampfbad und einem kleinen Lounge- und Erfrischungsbereich ist jeder Raum so gestaltet, dass er einen glückseligen Ort zum Entspannen und Genießen der Berg- oder Talsicht bietet. Ob in der Hitze der Sauna, schwebend in einem der Hängeliegen oder gleitend im Poolwasser, jede Ecke hat etwas Besonderes zu bieten.
HOLZFASSADE
Tradition trifft Moderne
– eine Mischung aus traditioneller Südtiroler Architektur und zeitgenössischem Design
Im Einklang mit dem Konzept entwarf Saga Studios die Fassade des Hotels, um diese Philosophie der Verbindung widerzuspiegeln. Sie ist inspiriert von der benachbarten Familien Bauernhaus mit einer typischen südtiroler Fassade. Die große Holzbalken vermitteln ein Gefühl von Erbe und Authentizität. Diese Designwahl stellt sicher, dass das neue Gebäude mit dem historischen und kulturellen Kontext der Region in Resonanz steht, jedoch auf mutige und neue Weise, symbolisch für die neue Generation, die das Hotel führen wird. Die Verwendung der großen Holzbalken bewahrt zudem die Authentizität und Nachhaltigkeit. Große Fenster und offene Räume laden die Natur ins Innere ein und bieten ununterbrochene Ausblicke auf das Tal und die Berge.
SPA
Der Spa-Bereich im zweiten Stock ist darauf ausgelegt, die nahezu 360°-Panorama-Landschaft zu zelibrieren. Mit einem Infinity-Außenpool und einer Terrasse, zwei Ruhezonen, zwei Saunen, einem Dampfbad und einem kleinen Lounge- und Erfrischungsbereich ist jeder Raum so gestaltet, dass er einen glückseligen Ort zum Entspannen und Genießen der Berg- oder Talsicht bietet. Ob in der Hitze der Sauna, schwebend in einem der Hängeliegen oder gleitend im Poolwasser, jede Ecke hat etwas Besonderes zu bieten.



























