UMBAU UND RENOVIERUNG VON 18 ZIMMERN/SUITEN
INNICHEN, SÜDTIROL, ITALIEN
FERTIGSTELLUNG 2022
DR. ARCH. SABRINA NEGRI
LAINS ARCHITECTURE
Ein gemütliches Familienhotel mit viel Geschichte und einladender Lage inmitten der Südtiroler Dolomiten möchte sich mit 12 Zimmer vergrößern: Das Ergebnis hat alles, was es braucht, um ein magischer Ort positiver Energie, Entspannung und Komfort für jeden Gast zu sein.
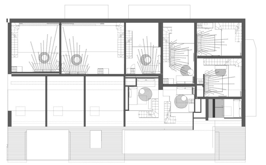
Die Holzlatten sind unterschiedlich lang und bilden so ein optisch wildes und freies Geflecht: als Referenz an einen Löwen, der als Namensgeber für das Haus maßgeblich beteiligt ist. Davon inspiriert waren auch die Farben der natürlichen Textilien und Holzoberflächen: braune Erdtöne, feuriges Rotbraun aber auch ein natürliches Grün. Die Hängelampen aus Glas nehmen die Farben auf und tauchen den Raum in eine behagliche Atmosphäre.
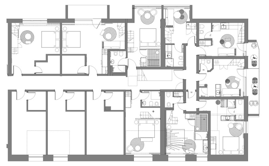
Das Projekt umfasst 12 Zimmer, davon zwei Suiten mit Kochnische, zwei Suiten mit Sauna und vier doppelstöckige Zimmer. Jeder Raum hat eine andere Größe und Grundriss und die Raumorganisation wurde entsprechend angepasst. Die gestalterischen Details bleiben jedoch gleich: die Holzlatten, die sich über die Decke an der Wand erheben und in einer Hängelampe oder einem Hängesessel enden.
MOOD & MATERIALS
Durch eine sinnvolle Raumnutzung und einen sensiblen Umgang mit gestalterischen Details fügen sich die neuen Zimmer harmonisch in den bereits bestehenden Teil des Hotels ein.


















